Tầm quan trọng của thiết kế xây dựng trước khi thi công
Xây nhà không chỉ là việc dựng nên một khối bê tông gạch đá, mà là cả một hành trình mang đậm tâm huyết của gia chủ và sự tận tâm của đội ngũ thiết kế – thi công. Mỗi công trình hoàn thiện đều được đánh giá qua hai yếu tố cốt lõi: công năng sử dụng có đáp ứng được nhu cầu sinh hoạt tiện nghi, và giá trị thẩm mỹ có đủ sức hút và thể hiện cá tính riêng của gia chủ.
Để hội tụ cả hai yếu tố này, một bản thiết kế kiến trúc hoàn chỉnh chính là nền tảng quan trọng nhất. Từ thiết kế, mọi phương án kỹ thuật và thi công mới có thể được triển khai chính xác, tiết kiệm chi phí và thể hiện đúng tinh thần của công trình.
Tại KT HOME DESIGN, chúng tôi thấu hiểu rằng mỗi bản vẽ không chỉ đơn thuần là kỹ thuật – mà còn là “bản đồ dẫn đường” để hiện thực hóa những ý tưởng, mong muốn, phong cách sống của từng gia đình. Tuy nhiên, không phải ai cũng hiểu rõ được vai trò sống còn của thiết kế kiến trúc trong quá trình xây nhà.
Nếu bạn vẫn còn đang phân vân liệu thiết kế kiến trúc có thực sự cần thiết trước khi thi công, hãy cùng chúng tôi khám phá sâu hơn trong bài viết dưới đây – bạn sẽ có câu trả lời rõ ràng nhất.

Việc thiết kế xây dựng trước khi thi công là một bước cực kỳ quan trọng – và gần như không thể thiếu trong quá trình xây nhà. Nó giống như việc bạn cần có một bản đồ chi tiết trước khi bước vào hành trình dài. Nếu không có bản đồ, bạn sẽ dễ bị lạc hướng, tốn thời gian, tiền bạc và có thể vướng phải nhiều rủi ro không đáng có.
Thiết kế kiến trúc là gì?
Thiết kế kiến trúc là quá trình bố trí, sắp xếp và định hình toàn bộ không gian sống – bao gồm: phần kiến trúc, kết cấu, hệ thống điện, hệ thống chiếu sáng, hệ thống cấp thoát nước, hệ thống thông gió… Và thời gian để tạo nên một không gian sống đẹp, tiện ích, đáp ứng đầy đủ công năng và một môi trường sống thuận tiện, thoải mái.
Khi bắt đầu xây nhà, nhiều gia chủ thường chỉ quan tâm đến hình dáng bên ngoài mà quên rằng một bộ hồ sơ thiết kế kiến trúc đầy đủ không chỉ là “vẻ đẹp mặt tiền” – mà là bản chỉ dẫn toàn diện để đảm bảo công trình bền vững, tiện nghi và tiết kiệm chi phí.
Bản vẽ thiết kế kiến trúc hoàn chỉnh gồm những gì?
Dưới đây là 3 thành phần bắt buộc cần có trong hồ sơ thiết kế:
1. Phần Kiến Trúc
Đây là phần thể hiện ý tưởng thẩm mỹ của ngôi nhà – từ hình dáng bên ngoài đến cách bố trí bên trong:
-
Phối cảnh ngoại thất: Giúp gia chủ hình dung tổng thể ngôi nhà sau khi hoàn thiện, bao gồm màu sắc, chất liệu, phong cách kiến trúc.
-
Mặt bằng từng tầng: Là mặt cắt của ngôi nhà theo từng tầng, thể hiện kích thước các mảng tường, vị trí cầu thang, phòng khách, bếp, phòng ngủ, vệ sinh… Mỗi chi tiết đều được ghi chú rõ ràng để dễ đọc và dễ hiểu.
-
Mặt đứng, mặt cắt công trình: Thể hiện chiều cao, tỷ lệ tầng, hệ mái, cửa, ban công… giúp đội thi công nắm được bố cục và tỷ lệ xây dựng chính xác.

Mặt đứng
2. Phần Kết Cấu
Đây là phần quan trọng để đảm bảo độ bền, độ an toàn chịu lực của công trình. Bao gồm:
-
Ghi chú quy cách thiết kế & thi công
-
Mặt bằng móng và chi tiết móng
-
Mặt bằng định vị cột và chi tiết kết cấu cột
-
Mặt bằng dầm và chi tiết dầm tầng
-
Mặt bằng kết cấu sàn tầng
-
Mặt bằng & chi tiết kết cấu lanh tô
-
Bảng thống kê cốt thép toàn bộ công trình
Phần kết cấu là “xương sống” của ngôi nhà, vì vậy cần được tính toán kỹ lưỡng bởi kỹ sư kết cấu có chuyên môn.

Mặt bằng định vị các cột
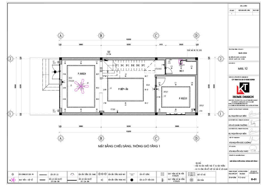
3. Phần Điện – Nước
Hệ thống điện nước đúng tiêu chuẩn sẽ giúp ngôi nhà vận hành trơn tru, tiết kiệm và an toàn:
-
Bản vẽ chiếu sáng
-
Thiết kế hệ thống ổ cắm điện
-
Thiết kế Internet, truyền hình cáp, điện thoại (nếu có)
-
Sơ đồ điện thông minh (nếu có)
-
Hồ sơ cấp nước – thoát nước
-
Thống kê vật tư hệ thống MEP
Việc thiết kế điện – nước bài bản giúp hạn chế tối đa rủi ro sau này như: chập điện, thấm dột, thiếu ổ cắm, đường ống chồng chéo…
Mặt bằng chiếu sáng thông gió tầng 1
Kết luận
Một bộ hồ sơ thiết kế kiến trúc đầy đủ là nền tảng để thi công suôn sẻ, đúng kỹ thuật, tiết kiệm chi phí, thời gian và quan trọng nhất là mang lại một không gian sống lý tưởng cho gia đình. Đầu tư cho thiết kế ngay từ đầu không chỉ là lựa chọn thông minh mà còn là cách bảo vệ “giấc mơ an cư” của bạn một cách lâu dài.




